开元体育

南通除尘系统 南通脱硫系统 南通气力输送系统 南通控制系统系列 南通产品 P产品展示PRODUCT
您当前所在的位置:网站开元体育 > 南通产品

南通DMC型脉冲袋式仓顶除尘器

作者:常州市昊达电力设备有限公司    发布时间:2019-10-11 8:56:38    浏览量:6715

脉冲除尘器 拷贝.jpg

DMC型脉冲袋式仓顶除尘器适宜布置在各种粉料贮存库的顶部,用于过滤含尘气体。

主要技术参数

DMC型脉冲袋式仓顶除尘器主要技术参数见下表,在选型时应注意入口粉尘浓度,在技术性能上,透过滤袋的气流速度(即过滤风速)与气体含尘浓度成反比,因此,在确定过滤面积时,还须满足滤袋的聚尘能力(即两次清灰期间滤袋单位面积上允许积尘数量),一般聚尘能力不大于400克/m2,可按下式计算:

聚尘能力=入口气体含尘浓度×过滤风速×两次清灰间隔时间,计算结果如超过聚尘能力,应调整过滤风速,增加过滤面积。


主要技术参数


技术参数

DMC-24

DMC-36

DMC-48

DMC-60

DMC-72

DMC-84

DMC-96

DMC-108

DMC-120

过滤面积(m2)

18

27

36

45

54

63

72

81

90

滤袋数量

24

36

48

60

72

84

96

108

120

滤袋规格

Ф120×2000

工作温度()

<120°(涤纶)

设备压力(Pa)

1000-1500

除尘效率

99%

入口含尘浓度

<15(g/ m3)

过滤风速m/min

0.5-4

处理风量m3/h

540~

4300

810~

6480

1080~

8640

1350~

10800

1620~

12900

1890~

15100

2160~

17200

2430~

19400

2700~

21600

喷吹气气压(MPa)

0.5-0.7

脉冲电磁阀()

4

6

8

10

12

14

16

18

20

脉冲宽度(m)

0.1-0.2

脉冲周期(s)

60-120

脉冲间隔(s)

1-50



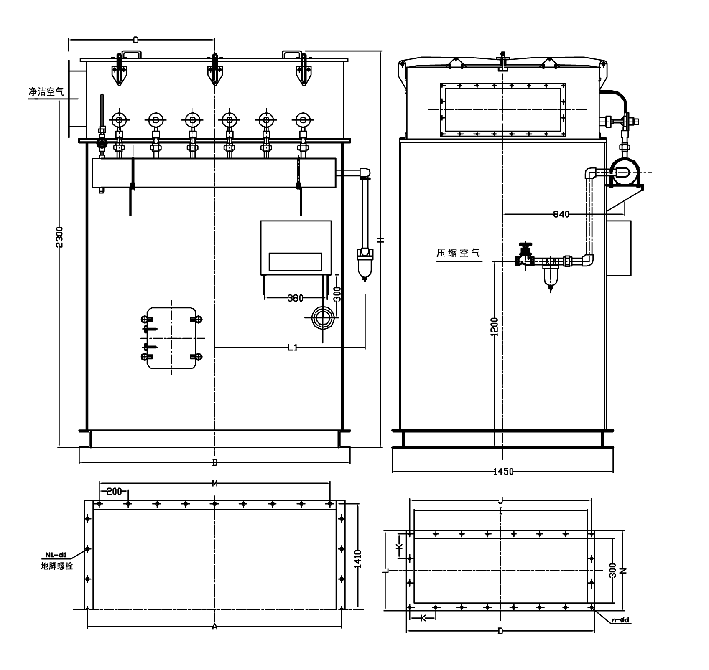
外形尺寸

代号

A

B

C

D

G

H

J

L

M

N

I

L1

K

K1

n-d

n1-d1

DMC24

960

1000

360

470

3/4

2625

440

339

1200

370

400

620

110

113

14-Ф11

24-18

DMC36

1360

1400

755

466

3/4

2625

441

339

1000

366

400

800

147

113

12-Ф10

28-18

DMC48

1760

1800

955

890

1

2625

840

339

1200

370

800

1020

110

113

20-Ф10

32-18

DMC60

2160

2250

1200

866

1

2650

836

339

2000

366

800

1250

120

120

20-Ф11

36-18

DMC72

2614

2650

1400

870

1

2650

840

339

2400

370

800

1390

120

113

20-Ф11

40-18

DMC84

3014

3050

1600

1270

1

2650

1240

339

2800

370

1200

1590

120

113

26-Ф11

44-18

DMC96

3410

3450

1835

1270

1

2650

1240

339

3200

370

1200

1755

124

113

26-Ф11

48-18

DMC108

3850

3900

2035

1450

1

2650

1400

339

3600

370

1360


120

113

34-Ф11

52-18

DMC120

4250

4300

2235

1450

1

2650

1400

336

4000

366

1360


120

120

34-Ф11

26-18


外形尺寸图

image036.png

相关标签 产品
在线询盘
公司名称: *
联系人: *
联系电话: *
电子邮箱:
联系地址:
需求内容: *